850 Melcher St
San Leandro, CA 94577

Scroll to Content

Open House Sat. (11/22) 12:30 - 2:30 p.m.

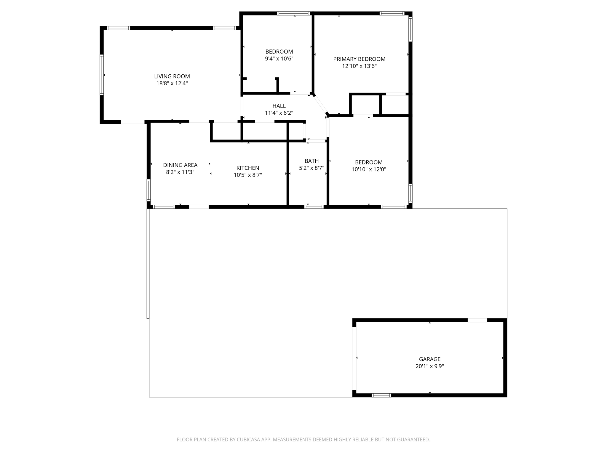
Welcome to 850 Melcher St — a charming 3BD/1BA single-story home brimming with character and ADU potential. Nestled on a generous lot in a quiet San Leandro neighborhood, this inviting residence offers a comfortable, well-designed layout.

Step inside to a welcoming living room that flows seamlessly into the updated kitchen, featuring quartz countertops, stainless steel appliances, and an open, modern footprint—perfect for everyday living and entertaining. Three spacious bedrooms provide ample comfort, while the refreshed bathroom delivers that “new home” feel.

Conveniently located near parks, schools, and major commuter routes, this property blends charm, location, and opportunity—ready for you to make it your own.

  • $799,999
  • 3 Bedrooms
  • 1 Bathrooms
  • 1,024 Sq/ft
  • Lot 5561 Acres
  • 2 Parking Spots
  • Built in 1943

Images

Videos

Floor Plans

3D Tour

Content Coming Soon